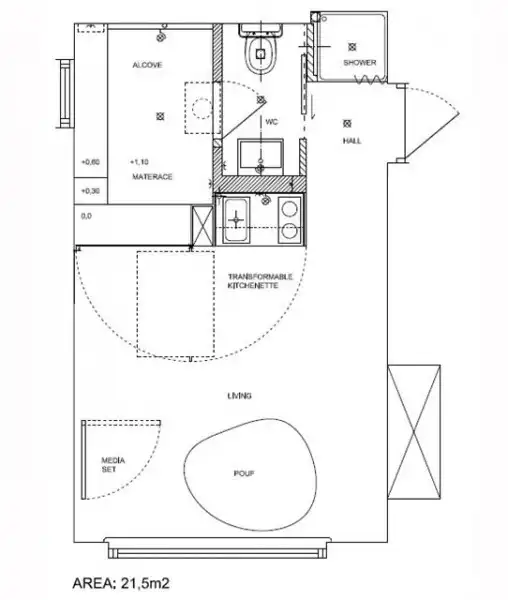
Дизайнер из Польши Якуб Сзчесни подошел со всей ответственностью к поставленной задаче и раскрасил в яркие краски это малогабаритную квартиру площадью 21 квадратный метр. В результате перепланировки в этой квартире появилось множество компактных решений - кухня, трансформируемая в столовую, в перегородку из гипсокартона вмонтирована узкая стиральная машина, душевая кабина прямо в прихожей, встроенные шкафы и так далее. Кроме обычной квартиры для проживания ее можно использовать и как игровую комнату.



