uCrazy.Ru / Как создать уютную двухкомнатную квартиру на малых квадратных метрах

Как создать уютную двухкомнатную квартиру на малых квадратных метрах

Всем привет друзья мои!!! Натолкнулся на просторах всемирной паутины на креативную планировку квартиры..так как я тоже приобрёл квартиру не больших рамеров, это мне очень понравилось, и в дальнейшем сам хотел бы сделать что то похожее на это.... Я понимаю многих это не заинтересует, но мне реально понравилось

Первым делом объединяется маленькая кухня с гостиной, установив на их границе бар


Спальня отделяется от остального пространства плотной портьерой




Простое решение для ванной. Светлые тона и зеркала зрительно расширяют пространство




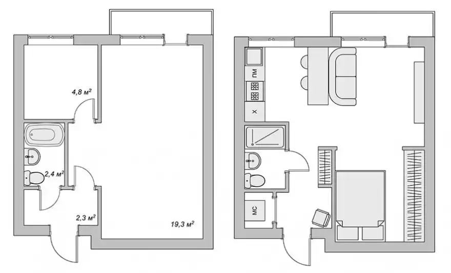
Планировка «до» и «после»


18 сентября 2015 01:22
Вернуться назад