Вот так выглядит умный дом Cube 2. Он продается уже со всем готовым, включая мебель. Стоит домик 52 тысячи долларов - это примерно 3,5 миллионов рублей. По-началу кажется, что даже хоббиту там будет тесно, но в Nestron заверили, что семье из 4 человек будет очень удобно.
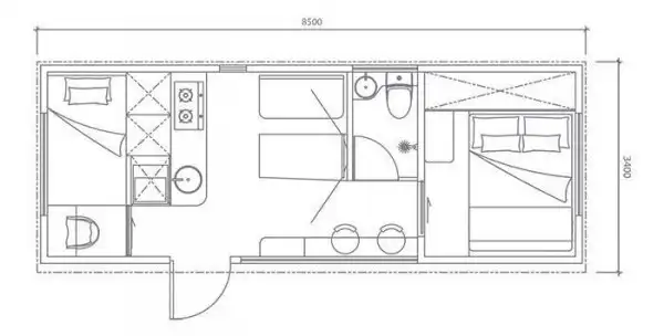
Как выглядит внутренний план дома.

Дом поставляется полностью готовым к проживанию: Как говорится, "заходи и живи".

В скромных 25 квадратных метрах поместились гостиная, кухня, спальня, ванная и даже мини-бар.

Планировка дома выполнена так, что полезная площадь умного дома на 15% больше, чем у обычной квартиры.

Окна в доме поставлены таким образом, чтобы внутри было максимальное дневное освещение. Также благодаря планировке окон площадь жилища визуально выглядит больше.

Кстати, мебель входит в стоимость дома.

Встроенная мебель включает обеденный стол, диван, кровать (только без матраса), гардероб и стеллаж для спальни.

По заверению создателей Сube2, семья из четырех человек будет комфортно жить в таких условиях.

Немаловажный бонус дома - это искусственный интеллект. Он управляет всеми встроенными приложениями.

ИИ по кличке Канни способен обучаться в процессе и адаптироваться к потребностям жильцов.

С помощью Канни можно включать и выключать свет голосом.

Любителям простора дом, конечно, не придется по вкусу.

Но тем не менее, внутреннее устройство дома и интеллектуальное управление позволяет с удобством жить в нем всей семьей.

