Из всех линейных кораблей Российской империи «Император Николай I»
оказался наименее известным. С одной стороны, это вполне объяснимо:
линкор так и не был достроен, на его долю не выпало никаких событий.
Однако такое отношение к нему во многом незаслуженно, ведь
конструкция этого корабля таила в себе немало особенностей. А если
бы он был достроен, то мог бы стать сильнейшей русской боевой
единицей на Черноморском театре военных действий. Каким же был
последний линкор Российской империи?
оказался наименее известным. С одной стороны, это вполне объяснимо:
линкор так и не был достроен, на его долю не выпало никаких событий.
Однако такое отношение к нему во многом незаслуженно, ведь
конструкция этого корабля таила в себе немало особенностей. А если
бы он был достроен, то мог бы стать сильнейшей русской боевой
единицей на Черноморском театре военных действий. Каким же был
последний линкор Российской империи?
Предыстория и начало строительства
После потери в Русско-японской войне почти всего своего флота перед Российской империей встал вопрос о его возрождении, причём на качественно новом уровне. К этому времени эволюция в кораблестроении привела к появлению нового типа линейных кораблей, названных по имени первенца дредноутами. Новые линкоры по всем параметрам превосходили эскадренные броненосцы, практически обесценив флоты, не имевшие таких кораблей. Естественно, русское флотское командование также собралось строить дредноуты для вновь возрождаемого флота. В 1909 году началось строительство четырёх кораблей типа «Севастополь» для Балтийского флота. При их проектировании максимально учли опыт русско-японской войны: корабли были прекрасно вооружены, имели высокую скорость хода, бронирование закрывало почти всю площадь борта, а площадь надстроек была сведена к минимуму.
Черноморский флот, не участвовавший в русско-японской войне, сохранил все свои корабли, качественно и количественно превосходя своего главного противника – турецкий флот. Однако в 1909 году Турция начала обновление своих военно-морских сил, заказав большинство новых кораблей у заграничных верфей, как когда-то сделала Япония. В 1911 году в Англии были заказаны два дредноута, получившие названия «Решад V» (позднее – «Решадие») и «Решад-и-Хамисс». Каждый из этих дредноутов был вооружён десятью 343-мм орудиями, что делало их сильнейшими кораблями на Чёрном море.
В ответ на турецкие приготовления в мае 1911 года Дума выделила средства на строительство трёх дредноутов для Чёрного моря. Прежде чем началась их постройка, немалые средства были выделены на модернизацию судостроительных предприятий на юге России. Черноморские линкоры строились по усовершенствованному проекту балтийских линкоров и получили усиленное бронирование, усиленную противоминную артиллерию, и, в то же время, меньшую скорость и дальность плавания, чем корабли-прототипы. Строительство новых линкоров для Черноморского флота, получивших названия «Императрица Мария», «Императрица Екатерина II» и «Император Александр III», началось в августе-сентябре 1912 года (официальная закладка состоялась осенью 1911 года).
Линейный корабль «Императрица Мария» во время
высочайшего смотра в Севастополе 12 мая 1916 года
высочайшего смотра в Севастополе 12 мая 1916 года
Тем временем, из-за финансового краха Турции после балканских войн строительство кораблей для неё резко замедлилось. «Решад-и-Хамисс» был разобран на стапеле, а строительство «Решада V» приостановилось до 1913 года. Однако, представив в качестве залога драгоценности низложенного султана Абдул-Гамида и земельные участки в Стамбуле, турецкое правительство решило купить ещё три дредноута, строившихся для государств Южной Америки на частных верфях США и Англии. Первым должен был стать бразильский «Рио-де-Жанейро» (четырнадцать 305-мм орудий, 27 500 т), получивший новое имя – «Султан Осман I». Кроме того, турки вели переговоры и о покупке аргентинских кораблей «Ривадавия» и «Морено» (двенадцать 305-мм орудий, 28 000 т). Кроме того, от Германии было получено обещание в течение года продать Турции линейный крейсер типа «Мольтке» (десять 280-мм орудий, 22 600 т).
В итоге, к началу Первой мировой войны Турция могла выставить против Черноморского флота четыре современных линкора, в то время как русские дредноуты могли встать в строй не раньше 1915 года. Несмотря на то что русским дипломатам удалось расстроить сделку Турции с Аргентиной, ситуация на Чёрном море оставалась очень напряжённой, тем более что в Петербург пришли известия о заказе в Англии ещё одного линкора для турецкого флота, получившего имя «Фатих». В этой тревожной ситуации было принято решение о срочном усилении Черноморского флота новыми кораблями. На строительство линкора, двух крейсеров, восьми эсминцев и шести подводных лодок было выделено 110 млн рублей. 24 июня 1914 года царь утвердил новую кораблестроительную программу, однако спешка со строительством дополнительных кораблей для Черноморского флота была так велика, что к тому времени линкор, получивший имя «Император Николай I», уже две недели как был в постройке. Что же касается проекта нового корабля, то к его разработке Главное управление кораблестроения (ГУК) приступило ещё в конце 1913 года.
Конструкция
По внешнему виду новый линкор принципиально не отличался от построенных ранее русских дредноутов типов «Севастополь» и «Императрица Мария». Общий стиль, характерный для этих кораблей – низкий надводный борт, четыре башни главного калибра, расположенные линейно, минимум надстроек, две дымовые трубы – сохранился и у четвёртого черноморского дредноута. Теоретический чертёж корпуса в целом остался таким же, как и у предшественников, однако водоизмещение нового линкора было на 4000 т больше, поэтому для достижения проектной скорости форма носовой части была изменена по результатам испытаний модели в Опытовом бассейне. Принятые меры позволили бы достичь скорости в 21 узлов с той же машинно-котельной установкой, что и на «императрицах».
Эскиз внешнего вида линейного корабля «Император Николай I»
по состоянию на май 1916 года. Расположение зенитных орудий
не соответствует действительности
по состоянию на май 1916 года. Расположение зенитных орудий
не соответствует действительности
В 1915 году, уже во время строительства нового линкора, стало известно, что недавно построенные «Императрица Мария» и «Императрица Екатерина II» оказались недостаточно мореходными для действий в свежую погоду. Их носовая часть зарывалась в воду, затрудняя ведение огня из носовой башни и носовых 130-мм орудий. Чтобы исправить этот недостаток, в ГУК был разработан проект полубака для «Николая I», как на линейных крейсерах типа «Измаил». Однако в итоге от нового полубака отказались, поскольку его добавление увеличило бы водоизмещение, дифферент на нос и снизило бы скорость корабля. Вместо полубака было решено соорудить откидной фальшборт в носовой части линкора.
Предполагаемый внешний вид «Императора Николая I», если бы
он был построен с полубаком. Рисунок А. Ю. Заикина
Вооружение
он был построен с полубаком. Рисунок А. Ю. Заикина
Вооружение
Хотя изначально рассматривался вариант вооружения корабля 356-мм орудиями, его главным оружием в итоге стали двенадцать 305-мм орудий Обуховского завода с длиной ствола 52 калибра – точно такие же, как и на предыдущих русских линкорах. Основным соображением в пользу такого состава вооружения стала унификация с уже построенными линкорами и освоенность данной артсистемы промышленностью. К тому же, это орудие было лучшим в своём классе по ряду параметров (в частности, по относительной длине ствола) и обладало самым тяжёлым в своём классе снарядом (470,9 кг). Дальность стрельбы таким снарядом при максимальном угле возвышения 25 градусов составляла 23 228 м, начальная скорость снаряда – 762 м/с. Бронебойный снаряд содержал 12,9 кг взрывчатки, полубронебойный – 48,4 кг, фугасный – 58,8 кг. По дульной энергии эта артсистема была сравнима с 343-мм орудием с длиной ствола 45 калибров, являвшимся главным оружием линкора «Решадие».
Орудия на «Николае I» устанавливались в четырёх трёхорудийных башнях, расположенных линейно — точно так же, как и на предыдущих русских дредноутах. Такое размещение башен обеспечивало максимальные сектора обстрела на каждый борт, при этом погреба каждой из башен оказывались максимально удалёнными друг от друга. Конструкция башен также в целом повторяла конструкцию предшественников, однако в неё были внесены некоторые изменения, позволявшие уменьшить время заряжания и повысить общую надёжность. По документам скорострельность составляла 2–2,5 выстрела в минуту, впрочем, здесь уместнее говорить не о боевой скорострельности, а о времени заряжания. Запас снарядов составлял 100 шт на каждое орудие.
Башня главного калибра линейного корабля «Император Александр III»,
идентичная башням «Императора Николая I». На палубе лежат 305-мм
снаряды образца 1911 года
идентичная башням «Императора Николая I». На палубе лежат 305-мм
снаряды образца 1911 года
Противоминная артиллерия была представлена (как и на предшественниках) двадцатью 130-мм орудиями с длиной ствола 55 калибров, размещённых в отдельных казематах под верхней палубой по десять с каждого борта (шесть из них могли вести огонь в носовых секторах обстрела, поскольку с этого ракурса была наиболее вероятной атака вражеских эсминцев). Таким образом, обеспечивался наиболее плотный огонь в наиболее опасных направлениях. Масса снаряда составляла 33,5 кг, запас снарядов – по 200 шт на орудие.
Зенитное вооружение «Николая I» по проекту состояло из четырёх 63-мм орудий, расположенных на крышах концевых башен. В годы войны, в связи с усилением угрозы с воздуха, появилась идея заменить эти орудия на четыре новейших 102-мм зенитных пушки Обуховского завода. Однако этот план так и остался на бумаге, поскольку к концу 1917 года новая артсистема ещё не вышла из стадии опытно-конструкторских разработок.
Дополняли вооружение линкора четыре 450-мм подводных торпедных аппарата.
Система управления огнём
Система управления огнём на «Николае I» представляла собой систему центральной наводки «образца 1912 года». Она уже устанавливалась на предыдущих линкорах и успела стать общепринятой для крупных артиллерийских кораблей русского флота. Данные о расстоянии до противника, его скорости и курсовом угле от дальномеров и артиллерийских визиров поступали в центральный пост, где на их основании вычислялись вертикальный и горизонтальный углы наводки собственных орудий (с учётом собственной скорости, курсового угла, скорости ветра и прочего). Полученные значения углов наводки передавались на артиллерийские циферблаты орудий, после чего орудийный расчёт приводил орудие к требуемому углу.
После получения донесений от всех орудийных расчётов, участвующих в залпе, о том, что орудия заряжены и наведены на цель, старший артиллерийский офицер замыкал электрическую цепь и производил залп. Стрельба велась только в том случае, если крен корабля отсутствовал – за этим «следил» специальный прибор, замыкавший цепь. На закрытом топе фок-мачты размещался корректировочный расчёт, который следил за всплесками от падения снарядов и передавал информацию о результатах залпа в центральный пост и старшему артиллерийскому офицеру. Уже в ходе постройки «Николая I» его башенные установки было решено оснастить собственными дальномерами и счётно-решающими устройствами, что повысило бы их автономность и точность артиллерийского огня.
Бронирование
В 1913 году на Чёрном море были проведены опытные стрельбы по «исключённому судну №4» (бывший броненосец «Чесма»). В кормовую часть его левого борта был встроен отсек с элементами конструкции и бронирования линейных кораблей типа «Севастополь», а на палубе смонтировали боевую рубку. Эти эксперименты показали слабость системы защиты этих кораблей, особенно распределение толщин палубной брони, которое уже в советское время председатель Научно-технического комитета ВМФ Н. И. Игнатьев назвал выполненным «вверх ногами». На четвёртом черноморском линкоре защиту корабля от снарядов было решено существенно усилить.
Принципиально схема бронирования «Николая I» мало отличалась от схемы защиты предыдущих русских дредноутов. В её основу был положен принцип бронирования максимальной площади борта, что обеспечивало защиту корабля от фугасных снарядов (по опыту русско-японской войны). Однако, по сравнению с линкорами типа «Севастополь» и «Императрица Мария», бронирование «Николая I» было существенно усилено.
Так, главный броневой пояс, простиравшийся от первой до четвёртой башни главного калибра, имел толщину в 270 мм (на балтийских линкорах – 225 мм). Бронепояс состоял из вертикально расположенных плит высотой 5,2 м и шириной 2,4 м, толщина которых к нижней кромке плавно уменьшалась до 125 мм. На «Николае I» немалое внимание уделялось прочности скрепления плит главного бронепояса между собой. Как оказалось, использовавшаяся на линкорах типа «Севастополь» система крепления броневых плит к обшивке корпуса (без деревянной подкладки) не обеспечивала должного уровня защиты. Даже в тех случаях, когда тяжёлый снаряд не пробивал броню, от сотрясения, вызванного его попаданием, бронеплиты смещались друг относительно друга, разрывая обшивку, в результате чего нарушалась герметичность борта. На «Николае I» стыки бронеплит располагались точно на шпангоутах корпуса, кроме того, плиты крепились между собой с помощью внутренних шпонок по схеме «двойной ласточкин хвост». Всё это позволило существенно усилить прочность главного бронепояса, по сути, превратив его в единую монолитную плиту.
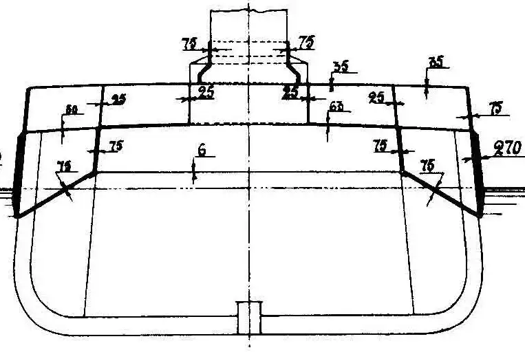
Схема бронирования линейного корабля «Император Николай I»
В носу и корме плиты главного пояса соединялись броневыми траверзами толщиной 150 мм, создававшими цитадель, защищавшую все жизненно важные части корабля – машинно-котельные отделения, погреба боезапаса, посты управления и вспомогательные механизмы. Сверху бронепояс закрывался главной бронепалубой толщиной 63 мм, поверх которой располагалась верхняя палуба из листов стали толщиной 35 мм. Таким образом, на «Николае I» была исправлена серьёзная ошибка в проектировании предыдущих русских линкоров, когда самая толстая бронепалуба располагалась вверху, а ниже неё находились более тонкие палубы. В результате снаряд, падавший сверху, пробивал верхнюю бронепалубу, а его осколки и обломки тяжёлых бронеплит с лёгкостью пробивали нижележащие тонкие палубы. Иными словами, если раньше горизонтальная защита на русских дредноутах располагалась «вверх ногами», то теперь её вернули в правильное положение.
Наружным бронированием защита цитадели не ограничивалась. Внутри корабля, на расстоянии 3–4,5 м позади главного бронепояса, располагался внутренний бронепояс из 75-мм крупповской стали. Его главной функцией была защита от осколков тяжёлых снарядов и отколов бронеплит главного пояса. По сравнению с 50-мм нецементированными плитами, применявшимися на «Севастополе» и «Императрице Марии», прочность внутреннего пояса на «Николае I» была выше на 120%.
Сечение линейного корабля «Император Николай I»
по 75-му шпангоуту с указанием бронирования
по 75-му шпангоуту с указанием бронирования
Выше главного бронепояса наружный борт от форштевня до кормового траверза защищался тонким поясом из нецементированных плит толщиной 75 мм. Его функция заключалась в защите борта от повреждений, вызванных фугасными снарядами. На предшественниках «Николая I» («Севастополе» и «Императрице Марии») его толщина составляла соответственно 125 и 100 мм. За счёт снижения толщины этого элемента защиты удалось сэкономить значительный вес и усилить бронирование главного пояса. За пределами цитадели корпус также имел защиту: от носового траверза до форштевня шёл пояс из крупповских плит толщиной 200 и 100 мм. Выше его размещался ещё один пояс из плит толщиной 100 мм. Корма за пределами цитадели защищалась поясом толщиной 175 мм, поверх которого шла 35-мм палуба, а понизу – палуба толщиной 63 мм.
Мощную защиту наконец-то получили башни главного калибра и их барбеты, бывшие воистину «ахиллесовой пятой» предыдущих дредноутов. Лобовые плиты башен имели толщину в 300 мм, стенки и крыша – в 200 мм. Бронирование барбетов получило адекватную защиту толщиной 300 мм выше уровня верхней палубы и 225–250 мм в пространстве между верхней и средней палубами. Боевая рубка защищалась с боков 400-мм плитами, а толщина крыши составляла 250 мм.
В целом, можно утверждать, что уровень бронирования «Николая I» был весьма высоким. Вес броневой защиты составлял 9454 т, или 33,9% от водоизмещения (для сравнения, вес бронирования на «Императрице Екатерине II» составлял 6878 т, или 28,8% от водоизмещения). Таким образом, удельный вес брони приближался к показателям тогдашних германских дредноутов, бывших по этому параметру лучшими в мире.
Увы, у «Николая I» имелось уязвимое место – он был плохо защищён от подводных взрывов. В случае попадания торпеды энергии её взрыва противостояли бы лишь наружная и внутренняя обшивка борта, а также слой угля в угольных ямах за ней. Переборка, отделявшая угольные ямы от котельных и машинных отделений, имела толщину всего 10 мм и не смогла бы задержать осколки разрушенного борта и продукты взрыва. По расчётам, подрыв уже 80–100 кг тротила привёл бы к затоплению больших внутренних объёмов корабля. Увы, подобная недооценка мощи быстро развивавшегося торпедного оружия была в той или иной мере свойственна практически всем тогдашним флотам, за исключением германского.
Машинно-котельная установка
Машинно-котельная установка для четвёртого черноморского линкора полностью повторяла проект установки для линкора «Императрица Екатерина II», однако развивала несколько большую мощность за счёт оптимизации некоторых параметров.
Котельная установка состояла из двадцати котлов типа «Ярроу», ранее уже применявшихся на всех русских дредноутах и хорошо освоенных промышленностью. Основным топливом был уголь, однако допускалась возможность одновременного впрыска нефти через форсунки, расположенные в верхней части топки. Котлы располагались в двух группах – носовой (8 котлов) и кормовой (12 котлов). Давление вырабатываемого пара составляло 17,5 атм.
Шесть турбин системы Парсонса располагались в трёх отсеках (двух бортовых и одном среднем). В левом бортовом отсеке располагались турбина высокого давления переднего хода и турбина высокого давления заднего хода, вращавшие левый наружный вал. В правом бортовом отсеке по такой же схеме располагались турбины, вращавшие правый наружный вал. В среднем отсеке находилось по одной турбине низкого давления переднего/заднего хода на каждом из двух внутренних валов. Суммарная мощность энергетической установки составляла около 30 000 л. с., скорость полного хода – 21 узел, экономического хода – 12 узлов. Запас топлива составлял 650 т, что позволяло кораблю идти с максимальной скоростью в течение 12 часов.
Электроэнергию вырабатывали четыре главных турбогенератора мощностью по 360 кВт и два вспомогательных мощностью по 200 кВт, каждый из которых приводил во вращение две динамо-машины – переменного и постоянного тока. Напряжение вырабатываемого переменного трёхфазного тока частотой 50 Гц составляло 225 В. К потребителям постоянного тока относились орудийные башни, система подачи снарядов, прожектора и лампы освещения. На переменном токе работали электровентиляторы, аэрорефрижераторы, электромоторы приборов управления стрельбой, судовых мастерских и прочих вспомогательных механизмов.
Система успокоения качки
«Николай I» первым из русских линкоров оснащался системой активного успокоения бортовой качки. Успокоение качки достигалось за счёт переливания воды из специальных цистерн U-образной конструкции одного борта в цистерны другого. Размеры цистерн рассчитывались таким образом, чтобы периоды колебаний воды в них примерно соответствовали периоду естественных колебаний корабля. Цистерны должны были располагаться на протяжении второй и третьей артиллерийских башен во внутренних трюмных бортовых отсеках. Объём воды, принимаемой в них непосредственно перед боем, составлял 740 т. Согласно расчётам, применение системы успокоения качки должно было снизить среднюю величину размахов примерно на 50%, что увеличивало предполагаемый процент попаданий в среднем вдвое.
Строительство
Закладка линкора на стапеле, освободившемся после спуска на воду корпуса линкора «Императрица Екатерина II», состоялась в Николаеве 9 июня 1914 года. Строительство вела частная компания «Наваль», взявшая на себя обязательства предъявить линкор на испытания не позднее 1 марта 1917 года. Артиллерия, торпедное вооружение, приборы управления стрельбой и броня поставлялись Морским министерством и в стоимость 22,5-миллионного контракта не входили.
После начала боевых действий в августе 1914 года строительство линкора несколько замедлилось. Сказались переориентация промышленности на военные рельсы, задержки поставок из-за границы и перезаказ части комплектующих у новых контрагентов. Кроме того, уровень турецкой угрозы снизился из-за того, что линкоры «Султан Осман I» и «Решадие» были реквизированы на время войны англичанами. Тем не менее, в течение осени-зимы 1914 года постройка корабля продвигалась довольно быстро. К середине весны 1915 года ветви шпангоутов были доведены до уровня средней палубы, в трюме шёл монтаж переборок. 15 апреля состоялась церемония официальной закладки, приуроченная к посещению завода Николаем II.
Однако сбои в поставках комплектующих продолжали нарастать. Ижорский завод срывал сроки поставки бронеплит скосов нижней палубы, что задерживало спуск корпуса на воду, изначально планировавшийся на октябрь 1915 года. Кроме того, рабочих компании «Наваль» постоянно перебрасывали на строительство крейсеров и эсминцев, а также достройку «Екатерины II».
В конце 1915 года большую часть брони верхней палубы перезаказали Мариупольскому броневому заводу. Появилась надежда завершить все работы по корпусу к концу весны 1916 года, а в июне произвести спуск на воду. Однако и этот срок был сорван из-за продолжительной стачки рабочих на «Навале» в январе-феврале 1916 года. В итоге спуск линкора на воду состоялся лишь 5 октября.
Корпус линкора «Император Николай I» на стапеле
в день спуска на воду 5 октября 1916 года
в день спуска на воду 5 октября 1916 года
В этот день на верфи царило приподнятое настроение, и казалось, что большая часть трудностей уже позади. После спуска корпуса на воду начался монтаж многочисленного оборудования, которое к тому времени уже было изготовлено в цехах «Наваля». Постройка «Николая I» снова набрала обороты. Однако в разгар работ страну потрясло известие о произошедшей Февральской революции и отречении царя от престола. В апреле «Николай I» сменил своё «монархическое» имя на «Демократию».
Помимо объективных трудностей со строительством во время войны, постройка замедлялась ещё и потому, что изначально неплохой проект к тому времени уже морально устарел. Недавно полученный опыт морской войны говорил, прежде всего, о совершенно недостаточной подводной защите корпуса. Недостаточной признавалась и скорость линкора (21 уз). Артиллерию главного калибра также посчитали малоперспективной в свете улучшившейся защиты новых линкоров ведущих морских держав. К сожалению, проект «Николая I» практически не имел резервов для улучшения своих основных характеристик. Тем не менее, достройка продолжалась.
По состоянию на апрель 1917 года на корпусе линкора было полностью установлено горизонтальное и траверзное бронирование, шла сборка и клёпка опорных барабанов для башен главного калибра. В машинных отделениях осуществлялась сборка фундаментов для турбин. Тем временем, в цехах «Наваля» шла сборка механизмов для линкора – их общая готовность оценивалась в 44% при общей готовности корабля в 60%. Тогда же, в апреле, был назначен новый срок ввода в строй – ноябрь 1918 года.
Однако и этим планам не суждено было сбыться. Первая мировая война подорвала экономику страны, а новая власть показала свою полную несостоятельность. В октябре 1917 года Временное правительство издало постановление о приостановке работ на линкоре «Демократия» до «более благоприятного времени». Работы на корабле полностью остановились. К 1 ноября 1917 года готовность корпуса по массе составляла 79,3%, готовность котельной установки была доведена до 71%. Изготовление артиллерийской части продвинулось гораздо меньше.
После окончательной остановки всех работ на линкоре в январе 1918 года он простоял под открытым небом до 1923 года. В феврале 1923 года недостроенный корпус посетила комиссия, занимавшаяся ликвидацией недостроенных и устаревших кораблей царского флота. Комиссия признала состояние корабля в целом удовлетворительным, и его вполне можно было буксировать в Севастополь на судоразделочный завод. Однако осуществлению этих планов помешало то обстоятельство, что линкор числился предназначенным на продажу за рубеж. По-видимому, покупателей найти не удалось, и недостроенный корабль простоял в ожидании своей участи до 1927 года, а затем был продан обществу «Рудметаллторг» на слом по цене 8,54 руб за тонну. 28 июня 1927 года бывший «Николай I» отправился в свой первый и последний поход. Сначала корабль отбуксировали в Одессу, а оттуда в Севастополь, где он и был разобран в Северном доке.
В истории последнего линейного корабля Российской империи как в зеркале отразилась судьба обширных судостроительных программ, принятых в России перед Первой мировой войной. Будучи весьма амбициозными, они оказались не по карману ослабевшему государству. Однако нельзя сказать, что проектирование и строительство «Императора Николая I» оказалось совсем уж бессмысленным. Став вершиной эволюционного развития проекта русского дредноута, последний линкор империи воплотил в себе лучшие черты своих предшественников, во многом избавившись от присущих им недостатков.
Тактико-технические характеристики линкора «Император Николай I»
ОСНОВНЫЕ КОРАБЛЕСТРОИТЕЛЬНЫЕ ЭЛЕМЕНТЫ
ОСНОВНЫЕ КОРАБЛЕСТРОИТЕЛЬНЫЕ ЭЛЕМЕНТЫ
БРОНИРОВАНИЕ
ВООРУЖЕНИЕ


