uCrazy.Ru / Крейсера типа "Чапаев". Часть 2: Довоенный проект

Крейсера типа "Чапаев". Часть 2: Довоенный проект



ЧАСТЬ 1. ИСТОРИЯ ПРОЕКТИРОВАНИЯ



Артиллерия главного калибра


Одной из крупнейших проблем, возникших при создании советского «Большого флота», стало хроническое запоздание разработки артсистем под строящиеся корабли - тем приятнее, что главный калибр крейсеров проекта 68 избежал подобного несчастья. Техническое задание на проектирование 152-мм/57 артсистемы Б-38 было утверждено 29.09.1938 г, т.е. примерно за год до закладки крейсеров. Первый образец орудия был создан в начале 1940-года, в период июнь-сентябрь 1940 г оно испытывалось с лейнерами двух различных конструкций. Испытания прошли штатно, из двух лейнеров был выбран один, и в том же 1940 г пушка Б-38 была рекомендована к серийному производству, которое началось еще до войны. До войны было сдано 13 орудий (по другим данным – несколько десятков), которые успели поучаствовать в Великой Отечественной, вот только стрелять по немецко-фашистским войскам им пришлось не с кораблей, а с железнодорожных установок.

Интересно, что первоначально баллистические решения Б-38 проверялись не на опытном экземпляре, а на специально перестволенной отечественной 180-мм пушке – такой подход позволял проверить заложенные в артсистему технические решения быстрее и дешевле, чем при создании опытного образца с нуля. В случае с Б-38, к примеру, от начала проектирования и до испытаний перестволенного орудия прошло всего лишь год (испытания состоялись в 1939 г). Об этом можно было и не рассказывать подробно, если бы не один нюанс: при аналогичной проверке баллистики 180-мм пушки, будущей Б-1-К, использовалась 203-мм/45 артсистема еще царских времен. Разумеется, в наше время начались спекуляции на тему, что советские 180-мм Б-1-К и Б-1-П представляют собой ничто иное как слегка модернизированные 203-мм пушки, хотя, конечно, достаточно самого беглого знакомства с баллистикой и конструкцией обеих пушек, чтобы увидеть ошибочность подобного мнения. И можно только радоваться, что факт использования перестволенных 180-мм артсистемы при проектировании Б-38 неизвестен широкой публике – эдак ведь легко можно было бы договориться и до того, что советские крейсера и в 50-х годах стреляли из слегка переиначенных восьмидюймовок Виккерса!

В целом Б-38 оказалась весьма удачной пушкой, которая была создана для крейсеров проекта 68 и без каких-либо изменений поступила на вооружение кораблей следующей серии 68-бис. Орудие имело рекордную баллистику и обладало существенными преимуществами в сравнении со 152-155-мм артсистемами мира.



Разумеется, следует учитывать, что все иностранные пушки были разработаны в период с 1930 по 1935 гг, но, тем не менее, на момент своего появления Б-38 являлась однозначным фаворитом среди шестидюймовых артсистем. Можно также говорить о том, что опыт создания 180-мм пушек Б-1-К и Б-1-П был реализован в полной мере. Давление в канале ствола Б-38 соответствовало таковому у ее 180-мм «предка», и составляло 3200 кг/кв.см., но живучесть отечественного 152-мм орудия, хотя и уступала американским и британским артсистемам, превосходила таковую у Б-1-П (320 выстр. усиленно-боевым) и составляла 450 выстрелов. При этом следует иметь ввиду, что так же, как и Б-1-П, новая пушка комплектовалась различными видами зарядов. В результате комендоры могли стрелять, придавая снаряду либо рекордные 950 м/сек начальной скорости, либо же сберегающие ресурс ствола 800 м/сек. – можно предположить по аналогии со 180-мм Б-1-П, что использование облегченного заряда увеличивало ресурс Б-38 не менее чем вдвое. Вес снарядов всех типов (бронебойный, полубронебойный, фугасный) был унифицирован и составлял 55 кг, в результате чего при стрельбе можно было по желанию менять тип снаряда, не делая при этом дополнительных поправок к прицелу. Также обращает на себя внимание высокое содержание ВВ в отечественных снарядах – почти во всех случаях иностранные снаряды уступают по этому параметру. Исключение составляют лишь американский фугасный снаряд (те же 6 кг ВВ что и у советского) и японский бронебойный, чей заряд ВВ на целых 50 грамм превосходит отечественный «бронебой».

Разумеется, сочетание начальной скорости в 950 м/сек и пятидесяти пяти килограмм массы давало отечественной Б-38 наилучшие показатели бронепробиваемости среди всех иностранных орудий этого калибра. Кроме того, следует учитывать, что большой разброс 47,5-50,8 кг снарядов американского и британского орудий, имеющих относительно невысокую начальную скорость (812-841 м/сек), усложнял пристрелку на больших дистанциях, в то время как японская 155-мм пушка, имеющая сходную с Б-38 баллистику, демонстрировала на дистанции около 20 000 м кучность даже лучшую, чем более тяжелые японские 200-мм орудия. Также имеются (увы, неподтвержденные) данные, что по кучности стрельбы Б-38 на дистанции 70-100 кбт незначительно уступала 180-мм Б-1-П, и все это вместе позволяет предполагать, что на указанных дистанциях артиллеристы крейсеров проекта 68 не должны были иметь никаких проблем с пристрелкой.

Технический проект трехорудийной башни МК-5 для крейсеров проекта 68 был создан еще до войны. Предполагалось, что серийным их выпуском займется Старокраматорский завод им. Орджоникидзе, на котором для этого был построен специальный башенный цех: в нем началось производство опытной башни, но до начала войны ее сделать не успели, а в дальнейшем строили уже по усовершенствованному проекту.


Носовые 152-мм башни крейсера "Чапаев" перед
испытательными стрельбами


На сей раз каждая Б-38 получила свою люльку и индивидуальное вертикальное наведение. Расстояние между осями стволов орудий составляло 1450 мм, что соответствовало американским башенным установкам (1400 мм), но было меньше такового у британских башен (1980 мм). Но следует учитывать, что принятые в ВМС РККА методы пристрелки (двойной уступ) требовали единовременного ведения огня только из одного орудия на каждую башню, таким образом, данный показатель не был настолько важен для советских крейсеров, как для их британских «коллег», вынужденных из-за большого разброса пристреливаться полными залпами. Заряжание осуществлялось на едином угле возвышения 8 град, но даже с учетом этого максимальная скорострельность доходила до 7,5 выстр/мин. В некоторых источниках указывается 4,8-7,5 выстр/мин, что, вероятно, соответствует максимальной скорострельности на предельных углах возвышения и углах, близких к углу заряжания.

В целом же можно констатировать следующее: в деле создания шестидюймовых пушек в мире просматривалось 2 тенденции. Первая (англичане и американцы) предполагала относительно нетяжелый снаряд при умеренной начальной скорости, что давало орудиям высокую скорострельность, столь необходимую для противостояния вражеским эсминцам, но затрудняло поражение целей на больших дистанциях. Второй подход (японцы) заключался в том, чтобы создать пушку рекордных ТТХ по части массы и скорости снаряда, чем достигалась хорошая точность на больших дистанциях боя, но из-за относительно невысокой скорострельности снижалась эффективность стрельбы по быстроходным целям. СССР предпочел третий (и надо честно признать, достаточно нахальный) путь - артсистему, которая будет обладать достоинствами обоих вариантов, не имея при этом их недостатков. Что удивительно, у советских конструкторов все получилось: свидетельством тому долгая и беспорочная служба 152-мм/57 пушек Б-38 в ВМФ СССР.

Что касается приборов управления стрельбой главного калибра, то можно лишь констатировать - на момент закладки крейсеров проекта 68 ни один крейсер мира не имел ничего подобного. Более того – СУО многих тяжелых крейсеров категорически не дотягивали до советского стандарта.

В предыдущем цикле, в статье "Крейсера проекта 26 и 26-бис. Часть 4. И ещё немного об артиллерии" мы рассказывали о ПУС крейсеров проекта 26-бис, оказавшихся чрезвычайно прогрессивными для своего времени. Но все же имели один, весьма существенный недостаток – единственный командно-дальномерный пункт (КДП), хотя тот и был оборудован аж тремя дальномерами сразу. Ну а крейсера проекта 68 получили не просто два КДП (правда, с двумя дальномерами каждый), но еще и два центральных поста управления огнем. Таким образом обеспечивалось не только дублирование, крайне полезное на случай боевых повреждений, но и возможность распределять огонь по двум целям (кормовые башни – по одной, носовые, соответственно, по второй) без потери качества управления. Сложно сказать, насколько это могло оказаться полезным, но, во всяком случае, лучше иметь возможность, чем не иметь ее. Кроме того, если КДП крейсера «Киров» размещался в 26 метрах над поверхностью моря, то из-за отказа от мачты в пользу башенноподобной надстройки на крейсерах типа «Максим Горький» этот показатель снизился до 20 м, но на крейсерах проекта 68 КДП «вернули» на высоту 25 м. Разумеется, тот факт, что чем выше расположение КДП, тем больше дистанция, на которую последний способен корректировать огонь, в комментариях не нуждается.

К сожалению, автор не смог найти источники, способные пролить свет на вопрос, чем же ПУС крейсеров проекта 68 (и их автоматы стрельбы) отличались от тех, что стояли на крейсерах проекта 26-бис. Есть лишь название ПУС «Мотив-Г», но следует иметь ввиду, что даже, если приборы управления огнем полностью дублировали бы проект 26-бис, то и тогда качество управления стрельбой крейсеров типа «Чапаев» могли бы попытаться оспорить только самые «продвинутые» крейсера уровня «Адмирала Хиппера».

Таким образом, возможности главного калибра советских крейсеров превосходили таковые у любого 152-мм крейсера мира.

Зенитная артиллерия дальнего боя (ЗКДБ)


В проекте 68 решено было отказаться от палубных 100-мм установок в пользу двухорудийных башен того же калибра. Данное решение следует признать, безусловно, прогрессивным, уже хотя бы потому, что башни имеют специальные подъемники, доставляющие снаряды и заряды (либо унитарные патроны) непосредственно к орудиям, что (в теории) может обеспечить несколько лучшую скорострельность – а ведь она для зенитного орудия является едва ли не главнейшей характеристикой. Планировалось установить четыре башни, что, по сравнению с крейсерами 26-бис, увеличивало количество стволов с 6 до 8 и доводило тем самым количество стволов ЗКДБ до «международного стандарта»: обычно на довоенных крейсерах (как легких, так и тяжелых) было четыре «спарки» 100-127-мм.

Сперва предполагали ставить башни МЗ-14, что разрабатывались для линкоров типа «Советский Союз» (проект 23), но вскоре пришли к выводу, что они слишком тяжелы. Поэтому решено было делать для легких крейсеров облегченный вариант, получивший шифр Б-54 – его масса должна была составить 41,9 т, по сравнению с 69,7 тонн МЗ-14. Качающаяся часть новой 100-мм пушки испытывалась в феврале-марте 1941 г и, находясь в НИМАПе, приняла участие в Великой Отечественной войне, а сама башня (без стрельбы) прошла заводские испытания на заводе «Большевик». Но после войны работы по Б-54 были свернуты в пользу более совершенных установок.

Дать какую-то характеристику Б-54 чрезвычайно сложно - согласно проекту, эта установка ни в чем не уступала, а по некоторым параметрам даже превосходила пушки аналогичного калибра других стран, но ведь и о злосчастной Б-34 можно было сказать то же самое… а в итоге получилась совершенно непригодная для эффективной зенитной стрельбы артсистема. Единственно, что можно утверждать наверняка – в понимании, какие именно зенитные орудия среднего калибра нужны легким крейсерам наши моряки шли вполне в ногу со временем, не опережая, но и не отставая от мировых тенденций. Если сравнивать ЗКДБ проекта 68 с крейсерами иностранных держав, то четыре советских башенных установки выглядят лучше «британского стандарта» - четырех палубных 102-мм спарок, которые ставились на «Тауны» и на легкие крейсера типа «Фиджи». Правда, на «Белфасте» и «Эдинбурге» их количество было доведено до шести, но из-за неудачного расположения погребов боезапаса эффективность этих установок была весьма невелика – к ним просто не успевали подавать снаряды в достаточном количестве. Восемь 127-мм/38 последних двух «Бруклинов» были несколько лучше, а 12 127-мм стволов «Кливлендов» - намного лучше, но нужно признать, что зенитная батарея дальнобойных орудий «Кливлендов» вообще опередила свое время. Таким образом, возможности ЗКДБ советского крейсера несколько превосходили британские, но сильно уступали американским легким крейсерам.

Зенитные автоматы и пулеметы


Здесь крейсера проекта 68 также отличаются в лучшую сторону от своих современников – шесть спаренных 37-мм автоматов 66-К (двухствольный вариант 70-К, широко применявшийся на кораблях СССР в годы ВОВ), выглядели предпочтительнее, чем пара четырехствольных «пом-помов» британских легких крейсеров «Фиджи», или четверка четырехствольных 28-мм «чикагских пианино» «Бруклинов», или даже четыре «спарки» 40-мм «бофорсов» первых легких крейсеров типа «Кливленд», заложенных, кстати, на год позднее кораблей типа «Чапаев». Впрочем, справедливости ради надо отметить наличие на американских кораблях 20-мм «Эрликонов», аналогов которых на советском корабле не было. Эти зенитные автоматы не были предусмотрены первоначальным проектом, но крейсера вступали в состав флота уже с ними – первые два «Кливленда» получили по 13 одноствольных установок. На последующих «Кливлендах» зенитное вооружение усиливалось, но, с учетом того, что корабли данного типа входили в строй, начиная с осени 1942 года, и при их достройке уже использовался опыт боевых действий, корректнее будет сравнивать их с послевоенной модернизацией 68-К, а не с довоенным проектом.

Что до пулеметов, то на крейсерах проекта 68 предполагалось установить четыре двуствольных 12,7-мм пулемета, и это вполне соответствовало британским легким крейсерам «Белфаст» и «Фиджи» (две-три четырехствольных установки 12,7-мм пулеметов более старой модели), а вот на американских крейсерах типа «Кливленд» пулеметов не было – их заменили «Эрликоны».

В целом же зенитное вооружение проекта 68 весьма ощутимо превосходило таковое у британских крейсеров, но уступало американским «Кливлендам».

Прочее вооружение (два трехтрубных 533-мм торпедных аппарата и 2 гидросамолета разведчика) соответствовало кораблям проекта 26-бис, и соответствовало разумному минимуму для легкого крейсера.

Бронирование


В двух словах: среди прочих легких крейсеров мира защита кораблей проекта 68 являлась наилучшей, за исключением, возможно, британского легкого крейсера «Белфаст». Но, поскольку столь претенциозное заявление вряд ли устроит уважаемых читателей, дадим более подробное описание.



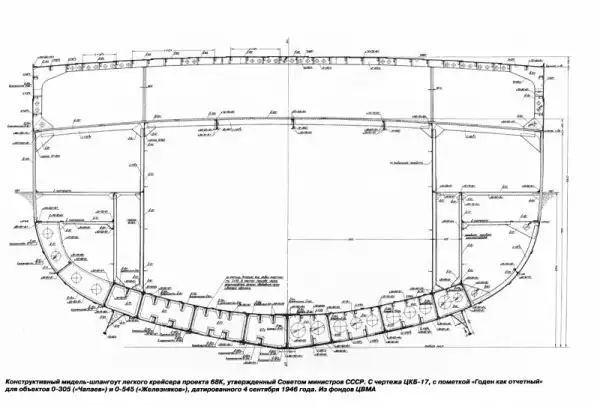
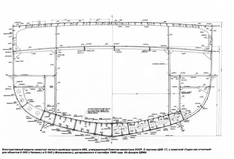
Борта крейсеров типа «Чапаев» защищал 133-метровый 100-мм бронепояс высотой 3,3 м, полностью закрывая не только машинные и котельные отделения, центральные посты, но и подбашенные отделения всех четырех МК-5 главного калибра. На крейсерах проектов 26 и 26-бис бронепояс обеспечивал примерно аналогичную по длине защиту, но был на 30 мм тоньше и на 30 см ниже (высота – 3 м). Кормовой траверз имел ту же толщину, что и бронепояс – 100 мм, но носовой был даже толще – 120-мм, а сверху эту, во всяком отношении мощную цитадель закрывала такая же, как и на крейсерах типа «Максим Горький» 50 мм бронепалуба. Но корпус кораблей проекта 26 и 26-бис защищался исключительно цитаделью, в то время как проект 68 имел бронирование и вне ее. Борта новых крейсеров от главного бронепояса и до форштевня защищались 20 мм бронеплитами той же высоты, что и главный бронепояс. Кроме того, от барбета башни №1 в нос (но не до форштевня) имелась 20 мм бронепалуба. Румпельное отделение, как и на крейсерах типа «Максим Горький», прикрывались с бортов и сверху бронелистами 30 мм.

Очень сильную броню получила артиллерия главного калибра: лоб башен 175 мм, боковые плиты – 65 мм, крыша -75 мм, барбеты – 130 мм. Сопоставимую защиту подобное из всех иностранных крейсеров имели только американские, но у последних барбет не доходил до бронепалубы,: от него вниз шла узкая 76 мм подачная труба, оставляя тем самым незащищенную зону в подбашенных помещениях. Что в сочетании с крайне странным решением хранить боеприпас (снаряды) непосредственно в барбете сильно снижало фактическую защиту главного калибра, невзирая на формально мощную броню.

Боевая рубка советских крейсеров защищалась 130 мм вертикальной и 70 мм горизонтальной броней, кроме этого, башенноподобная мачта и многие посты в надстройках имели 10 мм противоосколочное бронирование. Чуть лучшую защиту имели КДП (13 мм) и башни зенитных орудий, у которых лобовой лист и подачные трубы имели 20 мм, остальное – все те же 10 мм.

Интересно сравнить уровень бронирования «Чапаева» и иностранных крейсеров довоенной постройки, и тех, что закладывались в начальный период войны.



Наиболее адекватным выглядит бронирование «Белфаста», но, к сожалению, источники дают противоречивые данные о типе брони английского крейсера. Некоторые утверждают, что корабль защищался исключительно гомогенной, нецементированной броней, в то время как другие утверждают, что лобовые плиты башен и бронепояс «Белфаста» защищали более прочные, цементированные бронеплиты. Советский проект 68 защищался гомогенной броней: соответственно, в первом случае «англичанин», имея развитый 114 мм бронепояс, против 100 мм советского крейсера, имеет незначительное превосходство, но если правы те, кто пишет о цементированной броне, то преимущество британского корабля становится весьма существенным. Кроме того, горизонтальная защита «Белфаста», чья 51 мм бронепалуба утолщалась в районах башен главного калибра до 76 мм, также превосходила таковую у «Чапаева».

Однако на острых курсовых углах защита британского крейсера (траверзы 63 мм) была совсем нехороша, и почти вдвое уступала проекту 68 (100-120 мм), а кроме того, несмотря на то, что бронирование башен и барбетов «Белфаста» оказалось, пожалуй, лучшим среди британских крейсеров, оно все равно было слабым (барбеты 25-50 мм) и сильно уступало советскому крейсеру. Противоосколочное бронирование носовой части до форштевня также давало последнему определенные преимущества. Если все же 114 мм бронепояс «англичанина» был цементированным, то защита «Чапаева» и «Белфаста» приблизительно равноценна – оба корабля имеют определенные преимущества и недостатки и нелегко определить лидера, но если британские крейсера защищались гомогенной броней – преимущество за советским кораблем. Однако Великобритания построила всего лишь два корабля типа «Белфаст», в дальнейшем заложив большую серию легких крейсеров типа «Фиджи», которые, в общем-то, и следует считать британским ровесником проекта 68. А «Фиджи», представляя собой уменьшенный и удешевленные «Белфасты», несли брони почти вдвое меньше, чем советские крейсера и, разумеется, сильно уступали последним в защите.

Что до американских легких крейсеров, то их схема защиты представляется крайне сомнительной. Мы уже описывали ее ранее, на примере крейсеров типа «Бруклин» и сейчас только повторим основные моменты – цитадель «Бруклина» была мощнее, чем у проекта 68 – высотой 4,2 м (против 3,3 у советского крейсера) она на протяжении 2,84 м имела толщину 127 мм, далее утоньшалась к нижней кромке до 82,5 мм. Сверху цитадель защищалась 50 мм палубой, чья толщина к бортам сокращалась до 44,5 мм. Но протяженность этой цитадели составляла всего лишь около трети корабля (не более 56 м) против 133 м советского крейсера. Вне цитадели в нос корпус имел узкий (меньше одного межпалубного пространства) подводный бронепояс толщиной 51 мм, поверх которого лежала такая же 44,5-50 мм палуба. Единственной функцией носового бронирования вне цитадели являлась защита артиллерийских погребов: участие и бронепояса, и бронепалубы в обеспечении живучести было совершенно незначительным, если не сказать - ничтожным, поскольку и то, и другое находилось ниже ватерлинии. Таким образом, и снаряды, и бомбы, попавшие в носовую часть «Бруклина», способны были разрушать ничем не защищенные корпусные конструкции вызывая обширные затопления поверх бронепалубы. Более того – «подводная» бронепалуба при попадании авиабомб, если и могла выдержать их удар, то все равно инициировала подрыв боеприпаса на уровне ниже ватерлинии, т.е. фактически делая все для того, чтобы корабль получил подводные пробоины.



Корма крейсеров типа «Бруклин» вообще ничем не защищалась – внутри корпуса имелся длинный, но неширокий короб, начинавшийся от цитадели и прикрывавший артиллерийские погреба кормовых башен главного калибра. Этот «коробок» имел 120 мм вертикальной брони и сверху – 50 мм. Таким образом, несмотря на то, что погреба получили вполне адекватную защиту, большую часть кормы вообще ничто не прикрывало – ни бронепояс, ни бронепалуба. В целом же, благодаря экстравагантной схеме бронирования, и невзирая на то, что общая масса брони «Бруклинов» практически соответствовала таковой у «Белфаста», защиту американских легких крейсеров никак нельзя считать удовлетворительной.

Здесь может возникнуть вопрос – зачем вообще было вспоминать «Бруклин», если по времени проектирования и закладки «сверстником» отечественного проекта 68 являются более современные легкие крейсера «Кливленд»? Проблема в том, что «более современный» вовсе не означает «лучший»: бронезащита «Кливлендов» повторяла в целом схему «Бруклина», но была ухудшена по сравнению с прототипом. Если масса брони «Бруклина» составляла 1798 т, то «Кливленда» - только 1568 т, разумеется, некоторую роль этом сыграло уменьшение количества башен главного калибра с пяти до четырех, что позволило сэкономить массу барбета (броня вращающихся частей башен в общую массу брони не входит). Но, помимо этого, высота цитадели «Кливлендов» при сохранении той же толщины была снижена с 4,2 до 2,7 м.

В силу вышесказанного можно утверждать, что бронезащита легких крейсеров типа «Бруклин» (и тем более - «Кливленд») оказалась значительно хуже проекта 68.

Энергетическая установка


Крейсера проекта 68 получили практически те же котлы и турбины, что и корабли предыдущего проекта 26-бис. Их расположение в корпусе корабля (три котла, турбина, три котла, турбина) также повторяло аналогичное устройство 26-бис. И это было логично, потому что от добра добра не ищут – мало того, что подобное расположение обеспечивало достаточно высокую живучесть энергетической установки, но оно позволяло существенно улучшить живучесть корабля в целом. Это было связано с тем, что за счет вышеперечисленного расположения ширина котельных и машинных отделений советских крейсеров была относительно невелика и значительно меньше ширины корпуса в месте их размещения. Хотя крейсера типа «Киров» и «Максим Горький», строго говоря, не имели противоторпедной защиты (ПТЗ), но ее роль с успехом выполняли множество небольших герметичных отсеков, располагавшихся вдоль бортов, причем ширина такой импровизированной «ПТЗ» доходила до 4,1 метра.



Мощность машин оставалось той же – 110 тыс. л.с. и 126,5 тыс. л.с. на форсаже – это должно было обеспечить 33,5 уз максимальной скорости (34,5 уз на форсаже). Хотя скорость проекта 68 была и ниже, чем у «Максима Горького», но превосходство над иностранными крейсерами сохранялось – «Фиджи» мог развить только 31,5 уз, легкие крейсера типа «Бруклин» и «Кливленд» - не более 32,5 уз (некоторые из них на испытаниях не дотянули даже до 32 уз), а «Белфаст», способный развить 32,3 уз после модернизации и увеличения ширины корабля на 1 м, вряд ли мог выдавать более 31 уз.

Что касается дальности хода, то по этому параметру советские крейсера проекта 68 традиционно уступали зарубежным кораблям, хотя и не настолько, как корабли проекта 26 и 26-бис. Английский «Белфаст» и американские крейсера имели сопоставимую дальность порядка 7800 – 8500 миль экономическим ходом, а у типа «Фиджи» она едва превышала 6500 миль. Корабли типа «Чапаев» должны были обладать дальностью хода 5500 миль на экономическом ходу. Но по факту их постройки, и невзирая на значительную перегрузку в сравнении с первоначальным проектом, она оказалась выше, достигнув 6360 миль и даже более. Соответственно, не будет ошибкой предполагать, что фактическая дальность крейсеров проекта 68 по довоенному проекту оказалась бы еще выше. Еще, пожалуй, стоит отметить, что советские крейсера имели несколько большую скорость экономического хода (17-18 уз) по сравнению с английскими и американскими крейсерами (соответственно, 14-15 уз и даже 13 уз у «Фиджи»).

Корпус проекта 68 напоминал корпуса кораблей предыдущих типов – тот же вытянутый полубак едва ли не до середины длины корабля (40% длины корпуса). Однако в отличие от «Кирова» и «Максима Горького» высота борта была уменьшена до 7,9 м в носу (против 13,38 м крейсера «Киров») и только 4,6 м на миделе и в корме (соответственно, 10,1 м). Предполагалось, что и такой высоты будет достаточно для обеспечения приемлемой мореходности, но такие расчеты не подтвердились. Нос кораблей проекта 68 оказался достаточно «мокрым»: при свежей погоде и в шторм носовые башни во избежание захлестывания разворачивались в корму.



Впрочем, справедливости ради следует отметить, что британские «Тауны» от заливаемости страдали ничуть не меньше.

Но вот что интересно – несмотря на уменьшение корпуса, параметры остойчивости и непотопляемости крейсеров проекта 68 по расчетам превосходили не только корабли проектов 26 и 26-бис, но даже проекта 83, т.е…. проданного нам Германией тяжелого крейсера «Лютцов»! Можно, конечно, говорить о том, что бумага все стерпит, но тогда не мешало бы вспомнить, что, согласно предвоенным расчетам непотопляемости, крейсер «Киров» никак не мог пережить подрыв на донной мине, содержавшей взрывчатку, эквивалентную 910 кг ТНТ. При затоплении 9 смежных отсеков (согласно расчетам, корабль мог выдержать затопление не более трех крупных) «Киров» должен был погибнуть на месте, однако этого не произошло.

К сожалению, автору настоящей статьи не удалось найти «таблицы стрельбы» для отечественных 152-мм/57 пушек Б-38, соответственно, нет возможности провести анализ бронепробиваемости на различных дистанциях. Но для того, чтобы дать оценку довоенному проекту 68, этого и не требуется.



По совокупности боевых качеств легкие крейсера проекта 68 должны были превосходить любой легкий крейсер мира. Возможно, британский «Белфаст» имел некоторое преимущество в бронировании (что очень спорно), но он проигрывал в огневой мощи, средствах управления огнем, силе ПВО и скорости. Сравнивать крейсера «Чапаев» и «Фиджи», по большому счету, некорректно: несмотря на то, что «Фиджи» «тоже 12-оудийный» шестидюймовый легкий крейсер, но создавался он как урезанный «Белфаст» в целях финансовой экономии. Поэтому он и получился априори хуже «Чапаева» - будь советский крейсер достроен по первоначальному проекту 68, он превзошел бы англичанина буквально по всем параметрам: мощности орудий, бронирования, ПВО и скорости, но не только. Дело в том, что война внесла свои коррективы в развитие легких крейсеров, и стало ясно, что довоенное ПВО таких кораблей категорически недостаточно и нуждается в усилении. Но крейсера типа «Фиджи» были настолько плотно скомпонованы, что почти не имели возможности модернизации – в результате сколько-то приличное усиление противовоздушных возможностей кораблей этой серии удалось обеспечить лишь за счет снятия одной трехорудийной 152-мм башни. «Модернизационный запас» крейсеров проекта 698 оказался значительно больше, что и показала достройка таки кораблей по усовершенствованному проекту 68-К.

Американский «Бруклин» обладал большей огневой производительностью на малых дистанциях, но проигрывал на средних и больших, ПВО кораблей было сопоставимо, бронирование «Бруклина» однозначно уступало проекту 68 (в первую очередь из-за ошибок распределения брони), скорость – ниже. Легкие крейсера «Кливленд» … представляли собой большую ошибку американского военного кораблестроения и, вероятно, худшим типом крейсеров США. К счастью для американцев, значительная их часть была достроена в качестве малых авианосцев, а в этом качестве корабли оказались вполне удачны.

А вот как легкие крейсера… Снятие одной 152-мм башни ослабило огневую мощь, которой славился «Бруклин», а сокращение бронирования ухудшило и без того неважную защиту. Все это было сделано ради усиления противовоздушной обороны: легкие крейсеры данного типа получили беспрецедентно мощную 12-орудийную батарею 127-мм/38 орудий, заслуженно считающихся лучшими корабельными зенитными орудиями второй мировой войны. Более того – двухорудийные установки размещались «ромбически», что при наличии 6 установок позволяло вести огонь четырьмя из них на любой борт – такими возможностями не обладал ни один легкий крейсер мира. Но и цена за эти достоинства оказалась чрезмерно высока: корабли типа «Кливленд» отличались чрезмерно большим верхним весом и как следствие – неважной остойчивостью. Эта проблема была очевидна конструкторам еще на этапе проектирования корабля, поэтому с целью облегчения верхних весов они предполагали использовать при строительстве корабельных надстроек… алюминиевые сплавы. Но такого количества алюминия в военное время не нашлось даже у США, так что в итоге надстройки делались из обычной кораблестроительной стали.

Сложно даже сказать, какой вариант хуже: с одной стороны, трагедия эсминца «Шеффилд» со всей очевидностью продемонстрировала опасность алюминиевых сплавов в военном кораблестроении, но с другой стороны, и так не слишком остойчивые крейсера получили дополнительную перегрузку. А ведь по первоначальному проекту на «Кливлендах» вообще не предусматривалось размещение зенитных автоматов – только 12,7-мм пулеметы. Но в процессе строительства стало очевидно, что несмотря на мощнейшую 127-мм батарею, автоматические пушки все же нужны – сперва собирались ставить 28-мм «чикагские пианино», но при сдаче флоту «Кливленды» получали 40-мм автоматы, при этом их количество на ряде крейсеров серии доходило до 28. В результате, для того, чтобы как-то выровнять ситуацию с остойчивостью с крейсеров, приходилось снимать катапульты, боевые рубки и даже башенные дальномеры, укладывать им в трюмы балласт, но кардинально ситуацию это не улучшило.


Крейсер «Санта Фе» типа «Кливенд» в тайфуне в
Южно-китайском море


Кроме проблем с остойчивостью, корабли отличались не лучшей ПТЗ – всего одна авиационная торпеда, попавшая… даже не в середину группы отсеков энергетической установки крейсера «Хьюстон», а в крайнее машинное отделение №1 привела к полному затоплению всей ЭУ и полной потере хода. Также эти корабли были весьма нелюбимы среди моряков – из-за очень большой численности экипажа для корабля таки размеров. Если на крейсерах типа «Бруклин» экипаж включал в себя 888 человек (примерно столько же было и на британском «Белфасте») то экипаж «Кливлендов» насчитывал аж 1255 человек, вынужденных существовать в большой тесноте.

И при всем этом фактические возможности ПВО оказались не так уж и велики – корабли типа «Кливленд» в ходе войны неоднократно поражались одиночными камикадзе, а «Бирмингем» не смог защитить авианосец «Принстон» (переделанный из крейсера типа «Кливленд»!) от удара единственного японского бомбардировщика.

Служба крейсеров типа «Кливленд» стала на удивление короткой - по завершении войны (1946-47 гг) крейсера этого типа массово выводились из состава действующего флота в резерв. Несмотря на отдельные достоинства, крейсера данного типа у американцев не получились – иное дело последовавшие за ними корабли типа «Фарго», заложенные в конце 1943 года. Но эти корабли, фактически уже вступившие в строй после войны, мы будем сравнивать не с довоенным проектом 68, а с модернизированным 68-К.

Продолжение следует...
22 ноября 2016 00:35
Вернуться назад