Что можно купить в Нью-Йорке за 1 685 000 долларов
Поговорим сегодня о доступном жилье. Да, вы не ослышались. Квартиру про которую я сегодня расскажу можно относить именно к такому классу нью-йоркского жилья — доступный средний класс. То есть, есть недвижимость и сильно дороже, и сильно дешевле, а это некая золотая средина, отвечающая определенным требованиям.

Один мой знакомый на фоне последних событий решил вывести свои деньги из России (не могу осудить его за это) и вложить их в недвижимость в Нью-Йорке. Купленную квартиру он собирается сдавать и заодно иметь ее, как запасной аэродром. Меня он попросил подыскать ему какие-то варианты для просмотра. Я, как человек мало разбирающийся в местной недвижимости, попросил мне помочь моего френда Диму, который занимается этим профессионально. Мы посмотрели несколько вариантов, но этот мне понравился больше всего.
Это новый только что построенный 53-этажный жилой доме в даунтауне Бруклина. Самый высокий в этом районе Нью-Йорка на данный момент.
У моего знакомого было несколько пожеланий, касающихся покупки жилья. Это определенная цена (в данном случае не больше $1,8 миллионов), обязательно новый дом, двухбэдрумная квартира (трехкомнатная по нашему), приличный район, хороший нью-йоркский вид из окна и возможность сдать в будущем купленную квартиру за нормальные деньги. На Манхеттене найти что-то подобное можно, но трудно. От чего-то точно придется отказаться. Обычно первым отваливается вид. Тут же практически все условия соблюдены.
Квартира нельзя чтобы сказать, что большая. Площадь всего 107 квадратных метров. Но у нее есть все, что требовалось.
Подходящая цена — она стоит $1 685 000. К ней еще прибавится 3-4% на оформление сделки. С ценой интересная штука. Она сильно зависит от вида открывающегося из ваших окон. Такая же точно квартира, но семью этажами ниже будет стоить уже $1 550 000.
Еще на пару этажей ниже и с окнами на другую сторону — еще дешевле — $1 395 000. Но там из окон будет вид на Бруклин.

Да и то, будет это недолго. Скоро вот этот строящийся дом, который собирается стать самым высоким в Бруклине, все перекроет.
Этот вариант находится на 44 этаже и он самый дорогой. Но просили вид — вот вид.
Тут фотографии говорят сами за себя. Нью-Йоркский залив, Статуя Свободы и нижний Манхеттен.
Теперь что касается района. Я бы не назвал его сильно плохими или сильно хорошим. Внизу много коммерческой и офисной недвижимости и учебных заведений, куда ходит много черных студентов. Это откладывает отпечаток. Криминала там нет, но немного шумно, немного грязно, немного обшарпано. Не везде, но есть места. С другой стороны, рядом несколько станций метро и Манхеттен в двух остановках.
Району, скажем так, есть куда развиваться и судя по активному строительству этот процесс уже вовсю пошел. Вот если пройти за дом с двумя зелеными башенками на крыше, то начнется Бруклин-Хайтс с совершенно другой атмосферой. За ним будет набережная и парк.
Посмотрим, что внутри. Это вид от входной двери. Классический нью-йоркский случай — совмещенная кухня и гостиная. Лампочка на потолке — редчайший случай. Обратите внимание, что нет даже проводки под потолочные светильники. Они просто не приняты.
Есть интересная деталь, про которую я не знал. Во всех новых домах квартиры продаются полностью отремонтированные и с бытовой техникой. Изменить что-либо уже нельзя. Иногда можно выбрать цвет кухни, но это если покупать квартиру на ранней стадии. Купить бетонную коробку невозможно. Хотите сделать свою планировку — ломайте и выкидывайте то, что уже есть. Другого пути нет. Причем, для того, чтобы сделать ремонт придется получать разрешение у управляющей компанией (это не сложно) и нанимать компанию с лицензией. Завезти мексиканцев на объект не получится.
С одной стороны, это минус. С другой, все квартиры продаются по такой схеме и мало кто потом что-то меняет. Если хочется творить, то лучше брать помещение в где-нибудь Сохо, где будут одни только стены и столбы, подпирающие потолок.
Кухня со встроенной техникой: холодильник, посудомойка и микроволновка. Вытяжки традиционно нет. Ее заменяет фильтрующее устройство, эффективность которого вызывает большие сомнения.
Поэтому при готовке надо будет открывать окно. Вот вид из окна мне очень понравился. Готовил бы и готовил
Снял виды покрупнее для себя.
Средний Манхеттен.
В таких домах всегда есть вероятность, что со строительством новых домов вид может кончиться. Поэтому, если есть деньги, то лучше брать квартиру, как можно выше.
Пойдем дальше. Это хозяйская спальня. Отопитель/кондиционер под окном. Сами окна можно только чуть приоткрыть.
Есть большой встроенный шкаф, в котором можно жить
Главный (хозяйский) санузел.

Их два (один для хозяев, второй для гостей) и находятся они рядышком, что на мой взгляд несколько бредово. Как часто к вам ходят гости? Нафига он нужен? Задаю я себе вопросы…
Внутри все чистенько, аккуратно и накрыто пленкой. Это уже готовая к продаже квартира.
Сантехника с претензией на оригинальность. Не дорогая, но и не дешевая, как в большинстве нью-йоркских квартир.
Есть отдельная кладовка со стиралкой и сушилкой. Далеко не в каждой нью-йоркской квартире они есть. Ох в далеко не каждой.
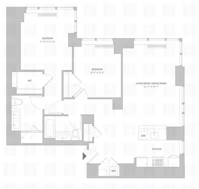
План квартиры, чтобы было понятнее.
Коридор.
Пару видов из квартиры подешевле. Под окном глобальная стройка.
Вид на Бруклин и небоскреб Вилли. За ним — Барклайс-центр — домашняя арена баскетбольной команды Бруклин Нетс, которая принадлежит Михаилу Прохорову.
Посмотрим, что еще включено в стоимость. В доме есть вещи доступные только владельцам квартир, а есть доступные тем, кто квартиры снимает. Тут надо уточнить, что до 32 этажа квартиры которые можно только арендовать, а все что выше можно только купить. Так вот, для владельцев есть специальное помещение, где они могут почитать книжку, поработать или посидеть с друзьями. Оно открыто 24 часа в сутки.
Это довольно большая комната с кучей диванов и кухней.
Есть столики, несколько телевизоров.
И даже бильярдный стол.
Еще есть терраса на крыше с самыми лучшими видами.
Большие стекла дают возможность ими насладится без дрожи в коленях.
Еще там есть несколько барбекюшниц.
И даже туалет!
Виды классные.
К мясу с вином — самое оно.
На крыше так же обнаружился классический нью-йоркский накопитель для воды.
На пятом этаже есть еще одна терраса. Там диваны, столы и еще пара барбекюшниц.
Рядом находится детская площадка.
Внутри помещение, которое доступно уже для всех и которое можно арендовать для вечеринки, чтобы, к примеру, не звать гостей в квартиру.
Уборка включена в стоимость.
Небольшой тренажерный зал. Есть еще один. Бассейна нет.
Это холл, где круглосуточно дежурит консьерж.
А это лифты. Еще есть подземная парковка, место на которой стоит 350 долларов в месяц.
Задал вопрос касательно накладных расходов на владение и за сколько купленную квартиру можно сдать. Коммунальные платежи — 1 200 долларов. Есть ежемесячный налог, который составляет 55 долларов. Агент сказала, что он будет действовать в течении 10 лет, а потом пойдет на повышение. По поводу аренды сказала, что аналогичные по планировке квартиры из тех, что идут под аренду, стоят 5 500 долларов в месяц и уже все сданы. Значит эту с видами можно сдать за 6 000-6 500. Единственное, что сдать ее можно не менее, чем на 12 месяцев. Такая получается экономика.


















































