Детский сад из морских грузовых контейнеров
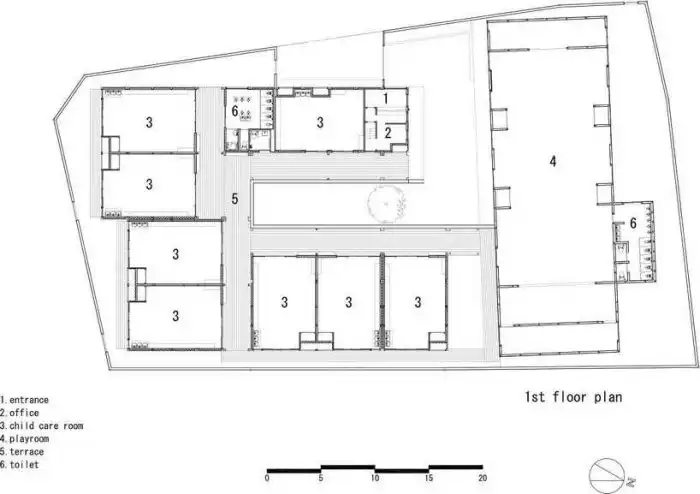
Мы уже неоднократно показывали вам архитектурные сооружения из грузовых морских контейнеров, но в большинстве случаев это были жилые дома, теперь же предлагаем взглянуть на детский сад из контейнеров. Этот необычный детский сад расположен в японском городе Сайтама. Здание было возведено в короткие сроки и конструктивно усилено, чтобы выдержать землетрясения. Контейнеры расположены таким образом, что создают небольшой внутренний дворик с крытой террасой, а комнаты для отдыха детей объединены с одним большим залом площадью 364 кв. метра.



























