Небольшая квартира, которая кажется больше, чем есть на самом деле
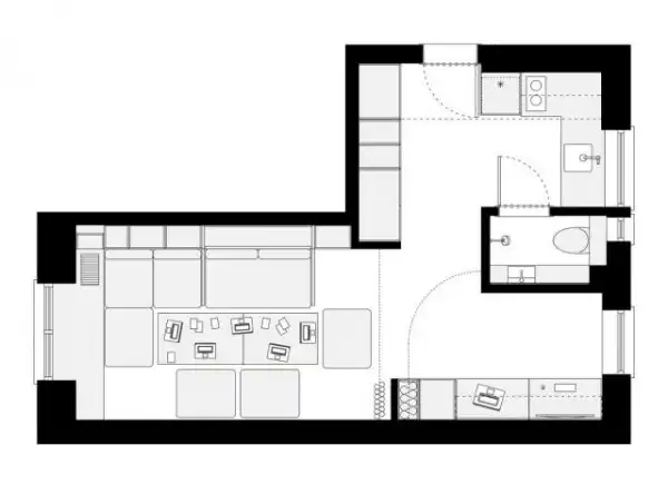
Архитектор Грэм Хилл продемонстрировал, что небольшая квартира может стать куда вместительнее, если эффективно организовать ее пространство. Его последний проект — «двушка» площадью всего 33 кв. м в нью-йоркском районе Сохо. Использовав раскладную мебель, автор добился нужного результата.
Основная функция первой из комнат — спальня. Раскладная кровать в дневное время убирается в стену, а освободившееся место можно использовать сразу для нескольких задач. С помощью нескольких кресел формируется гостиная для отдыха, стол-трансформер позволяет здесь же устроить столовую на целых десять человек.
Вторая маленькая комната является кабинетом, но при необходимости может выступать в качестве второй спальни. Для организации дополнительных спальных мест используются те же складные кресла из первой комнаты. Кроме этого, в квартире имеются кухня и ванная комната. По мнению автора проекта, получившийся результат выполняет функции, для которых в обычном жилье требуется в 2 раза большая площадь.











